顺强称重模块(Shunqiang weighing module)

产品信息(Product information)
1. 传感器全密封结构,环境适应性较强
2. 球形连接件,始终保持模块的垂直称重状态
3. 支撑螺栓,防止设备倾覆且方便维护
4. 接地装置,保护传感器免受电源浪涌冲击
5. 过载保护装置,保护传感器免受冲击力
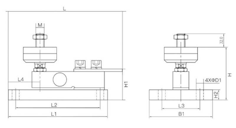
产品尺寸(Product size)

| 额定载荷(t) | 尺寸(mm) | |||||
H | H1 | H2 | B1 | D1 | ||
| (SQ-5917)0.1~2 | 130~140 | 58 | 18 | 100 | 13 | |
| 额定载荷(t) | 尺寸(mm) | |||||
L | L1 | L2 | L3 | L4 | M | |
(SQ-5917)0.1~2 | 210 | 175 | 140 | 70 | 58 | M16×2.0 |
产品参数(Product parameter)
产品型号:SQ-5917 | 输出灵敏度:2.0mV/V |
输出量程:50/100/250/500/1000/2000kg | |
精度等级:C3 | 非线性:0.03%F.S. |
滞后:0.03%F.S. | 重复性:0.03%F.S. |
蠕变:0.03%F.S. | 温度灵敏度漂移:0.002%F.S./℃ |
输入电阻:1050±10Ω | 零点温度漂移:0.002%F.S./℃ |
输出电阻:1000±5Ω | 绝缘电阻:≥5000Ω |
激励电压:5~12V | 最大激励电压:15V |
温度补偿范围:-10~40℃ | 工作温度范围:-30~70℃ |
安全超载:150%F.S. | 极限超载:200%F.S. |
电缆线尺寸:φ5.7×3500mm | 材料:合金钢 |
防护等级:IP68 | |
模块安装方式(Module installation mode)
根据传感器的不同组装方式分以下三种:
1.固定模块:安装点不会产生水平位移
2.半浮动模块:使称重系统能围绕着固定点进行调整,从而消除容器变形对称重精度的影响
3.浮动模块:安装点即使在出现水平位移的情况下,仍能将承载力精准地传递给传感器

安装前请检查基础状况:各安装点平面落差控制在3mm以内,同一基础面水平度应控制在1mm/m以内,基础承载能力要求大于传感器的量程。
1.安装前请检查安装螺杆预紧力,如有松动,请先预紧后安装。
2.模块安装之前,请将承载板调到水平状态
3.模块安装完毕,将螺母松开与螺柱拧紧
4.如果上述方法无法进行可在模块安装之前进行调节,将限位螺杆松开2mm,螺母与螺柱拧紧再进行安装
5.螺柱与下承载板拧紧,螺母将限位螺杆与螺柱锁紧,使限位螺杆真正达到限位,防止设备倾覆的目的。
注意:设备调试过程中,若出现角差偏差过大、仪表回零较差、砝码加载后重量值偏小或无变化,请检查模块限位部分有无卡死或轻微摩擦影响;检查设备外围硬件连接有无外力影响
产品实拍图(Product real picture)




全国服务热线









